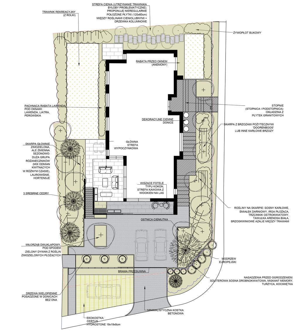
8. Ogród ze skarpą - Słupsk
Ogród został zaprojektowany na terenie o różnicy wysokości ponad 3,5 m. Z górnej części działki otwiera się widok na las. Przed ogrodzeniem przewidziałam parking z eko-kostki brukowej, kwadratowej, z fugami wypełnionymi żwirem. Dolny poziom ogrodu stanowi szeroki podjazd do garażu z miejscami postojowymi. W bocznej części podjazdu zaprojektowałam rabatę z miłorzębem dwuklapowym i dywanem z runianki japońskiej. Zaproponowałam, by skarpę łączącą podjazd z wejściem do domu, obsadzić brzozami ‘Doorenbos’, śmiałkiem darniowym, irgą płożącą, białą tawułką Arendsa, azaliami oraz soliterowym modrzewiem w narożniku. Drugą skarpę, prowadzącą z podjazdu na taras wypoczynkowy, tworzą gęste nasadzenia krzewów ozdobnych: różaneczniki kwitnące w różnych terminach, hortensje bukietowe oraz trzy cedry himalajskie. Na najwyższym poziomie ogrodu zaplanowano prostokątny trawnik będący strefą zabaw dla dzieci. Przy oknach rośnie pachnąca rabata z lawendą, liatrami i perowskią. Wzdłuż ogrodzenia (z prefabrykowanej L-ki betonowej), ze względu na brak możliwości posadzenia drzew, przewidziano trzy wysokie donice z drzewkami wielopiennymi. Strefa wypoczynkowa obejmuje główny taras o dwóch poziomach: górnym, z zestawem wypoczynkowym i dolnym, z częścią jadalnianą. Na wąskiej części tarasu górnego umieściłam dwa wiszące fotele typu kokon, skierowane w stronę lasu.